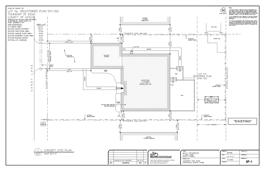
6 Sandy Lane
Site Plan:

Ward: 1
Applicant: Rick Jablonski, MIDTOWN Technical Services on behalf of Luke Lynn.
Date of 1st Submission being “Deemed Complete”: March 24th, 2023
Subject: Zoning By-law Amendment (File No. Z5-23)
Date of Public Meeting: January 14th, 2025
If a second meeting is required, when will it be held?: To be Determined by Staff.
Description of Proposed Development:
6 Sandy Lane is a residential lot within the Angus Settlement Area.
The proposed Zoning By-law Amendment would redesignate the subject property from Residential, Low Density, Detached (R1) to Residential, Low Density, Detached with Special Provisions (R1-XX) to allow for a group home to exist on the property.
The Township is in receipt of materials intended to support the Application, which can be accessed by contacting the Township Planning Department.